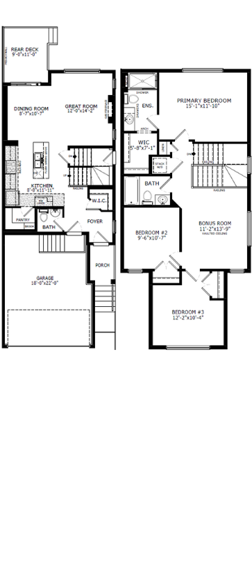
Valmore 4 - 109 Southbow Drive
Kitchen
- Chimney hoodfan with microwave built in to upper cabinets
- Island with eating ledge
- Dishwasher in island
- Walk-in pantry with broom closet
Convenience
- 2025 Specifications
- Side entrance
- Gas line RI for BBQ on rear 9’x 11′ deck with privacy wall
- Additional windows throughout home
Bathrooms
- 3-piece ensuite with bank of drawers and Walk-in closet
- Fiberglass base shower with tiled walls, niche, glass shelves and barn style glass door in ensuite
- Tile Flooring in ensuite
- LVP flooring in laundry room and upper main bathroom
Rest of Home
- Gas Fireplace with tile to the ceiling
- Paint grade railing with iron spindles
- Vaulted Ceiling in bonus room
Floorplan
Style:
Front Garage DuplexesTotal SQFT:
1556Main Floor SQFT:
693Second Floor SQFT:
863Bathrooms:
2.5Bedrooms:
3Garage:
2 Cars
Sterling Homes
Sterling Homes, a trusted Calgary home builder, with an extraordinary legacy of building new single family homes and communities for over 70 years. Masterfully designing superior quality family homes with dedication to delivering unrivaled craftsmanship and value. Sterling Homes’ pride lies in offering customers an unmatched building journey where a house is more than a home, it’s a place where you are proud to build your life.